Accueil Nos annonces de vente >

Appartement à vendre - Nantes 3 pièces de 59.97 m²


Nous contacter
Saint-Felix
SAINT-FÉLIX / TORTIÈRE A côté des bords de l'Erdre et des universités
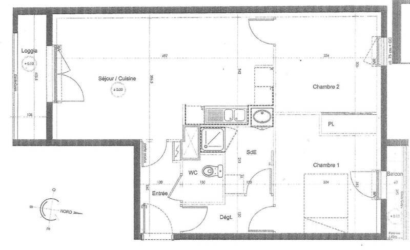
En étage avec ascenseur, appartement de type 3 traversant comprenant entrée, pièce de vie avec cuisine aménagée, deux chambres, une salle d'eau, wc séparés.
le balcon au calme, accessible par le séjour est exposé Sud.
Place de parking en sous-sol
Les charges comprennent chauffage, eau chaude et froide avec compteur individuel

Caractéristiques

Nombre de pièces : 3

Surface habitable : 59.97 m²

Nombre de chambres : 2

Type chauffage : CollectifComptageIndividuel

Nature chauffage : Gaz

Exposition : NS

Année de construction : 2014

Ascenseur : Oui

Nombre de balcon : 1

Étage : 3

Nombre total d’étages : 5

Bien en copropriété

Nombre de lots : 80

Charges prévisionnelles : 2 321 € / an

Ascenseur

Prix de vente honoraires exclus : 260 000 €
Honoraires charge acquéreur TTC : 15 600 € (6% du prix net vendeur selon barème agence)
Les informations sur les risques auxquels ce bien est exposé sont disponibles sur le site Géorisques : www.georisques.gouv.fr

Diagnostic de performance énergétique

C
v Date de réalisation : 15/09/2025
Classe énergie
C
70 kWh/m².an
Classe climat
C
12 kg CO2/m².an

Estimation des coûts annuels d’énergie du logement
Entre 330 € et 500 € par an
Prix moyens des énergies indexés sur l'année 0 (abonnements compris)

Environnement et localisation

Nous appeler

Ce bien vous intéresse ?

Laissez nous un message

Si vous cochez non, vous indiquez que vous ne souhaitez pas recevoir de lettre d’information sur l'actualité de l’immobilier, les offres et produits de Thierry Immobilier.

En cliquant sur Envoyer vous acceptez de recevoir des informations concernant le bien présenté ci-dessus et des offres similaires susceptibles de vous intéresser.

Envoyer
*Les champs marqués d'un astérisque (*) sont obligatoires. Recueil de vos informations personnelles afin de pouvoir gérer la relation client et apporter conseils et informations complémentaires au niveau de la marque Thierry Immobilier et le cas échéant au niveau des partenaires et prestataires. Les données transmises via ce formulaire sont destinées uniquement au personnel de Thierry Immobilier et sont conservées pour une durée n’excédant pas celle nécessaire à la réalisation des finalités précitées.
Conformément au Règlement européen n°2016/679/UE du 27 avril 2016 sur la protection des données personnelles et à la loi « informatique et libertés » du 6 janvier 1978 modifiée, vous disposez d'un droit d'interrogation d'accès, de rectification, d’effacement, de portabilité et de limitation du traitement des données vous concernant ainsi que du droit de communiquer des directives sur le sort de vos données après votre mort. Vous avez également la possibilité de vous opposer au traitement des données vous concernant pour motifs légitimes. Vous pouvez exercer ce droit par courrier électronique adressé à : rgpdnantes@thierry-immobilier.fr - rgpdangers@thierry-immobilier.fr, ou par courrier à Thierry Immobilier - 10 rue Sarrazin - 44000 - Nantes, accompagné d'une copie d'un titre d'identité. Pour plus d'informations consulter nos Mentions légales.

Agence de Vente Nantes Viarme - Talensac
Nantes

Pour plus d'informations
 Julie LE DUC - Agence de Vente Nantes Viarme - Talensac

LE DUC Julie

02 40 47 03 03

Envoyer un mail

Biens similaires

Appartement 3 pièces à la vente
44000 Nantes
Centre ville

286 200 € Honoraires d'agence inclus

SAINT-MIHIEL

Réf : 128529
Honoraires charge acquéreur

Appartement 2 pièces à la vente
44000 Nantes
Rond-point de Rennes

222 000 € Honoraires d'agence inclus

T2 ROND POINT DE RENNES

Réf : 129153
Honoraires charge acquéreur

Appartement 3 pièces à la vente
44000 Nantes
Gare Sud - Malakoff

289 000 € Honoraires d'agence inclus

GARE SUD

Réf : 128683
Honoraires charge acquéreur