Accueil Nos annonces de vente >

Appartement à vendre - Saint-Nazaire 4 pièces de 80.99 m²


Nous contacter
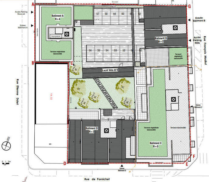
LA HAVANE
Résidence Coeur Océan.
Au sein du Quartier de La Havane, nous vous proposons cet appartement 4 pièces de 81m². Situé au 5ème et dernière étage avec ascenseur, il comprend une entrée avec placard, une pièce de vie avec séjour et cuisine donnant sur un balcon exposé Ouest, 3 chambres dont une avec un balcon, une salle d'eau et des WC séparés.
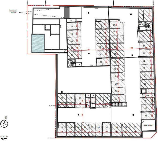
Un grand garage en sous-sol complète ce bien.
Chauffage individuel au gaz.
Résidence neuve, possibilité de visiter.

Caractéristiques

Nombre de pièces : 4

Surface habitable : 80.99 m²

Nombre de chambres : 3

Type chauffage : Individuel

Nature chauffage : Gaz

Exposition : Ouest

Année de construction : 2024

Ascenseur : Oui

Étage : 5

Nombre total d’étages : 5

Bien en copropriété

Nombre de lots : 113

Charges prévisionnelles : 1 200 € / an

Ascenseur

Prix de vente honoraires exclus : 439 000 €
Honoraires charge acquéreur TTC : 0 € (0% du prix net vendeur selon barème agence)

Diagnostic de performance énergétique

C
v Date de réalisation : 26/11/2024
Classe énergie
C
75 kWh/m².an
Classe climat
C
15 kg CO2/m².an

Estimation des coûts annuels d’énergie du logement
Entre 693 € et 938 € par an
Prix moyens des énergies indexés sur l'année 0 (abonnements compris)

Environnement et localisation

Nous appeler

Ce bien vous intéresse ?

Laissez nous un message

Si vous cochez non, vous indiquez que vous ne souhaitez pas recevoir de lettre d’information sur l'actualité de l’immobilier, les offres et produits de Thierry Immobilier.

En cliquant sur Envoyer vous acceptez de recevoir des informations concernant le bien présenté ci-dessus et des offres similaires susceptibles de vous intéresser.

Envoyer
*Les champs marqués d'un astérisque (*) sont obligatoires. Recueil de vos informations personnelles afin de pouvoir gérer la relation client et apporter conseils et informations complémentaires au niveau de la marque Thierry Immobilier et le cas échéant au niveau des partenaires et prestataires. Les données transmises via ce formulaire sont destinées uniquement au personnel de Thierry Immobilier et sont conservées pour une durée n’excédant pas celle nécessaire à la réalisation des finalités précitées.
Conformément au Règlement européen n°2016/679/UE du 27 avril 2016 sur la protection des données personnelles et à la loi « informatique et libertés » du 6 janvier 1978 modifiée, vous disposez d'un droit d'interrogation d'accès, de rectification, d’effacement, de portabilité et de limitation du traitement des données vous concernant ainsi que du droit de communiquer des directives sur le sort de vos données après votre mort. Vous avez également la possibilité de vous opposer au traitement des données vous concernant pour motifs légitimes. Vous pouvez exercer ce droit par courrier électronique adressé à : rgpdnantes@thierry-immobilier.fr - rgpdangers@thierry-immobilier.fr, ou par courrier à Thierry Immobilier - 10 rue Sarrazin - 44000 - Nantes, accompagné d'une copie d'un titre d'identité. Pour plus d'informations consulter nos Mentions légales.

Agence de Saint Nazaire
Saint-Nazaire

Pour plus d'informations
Mr Dylan RANNOU - Agence de Saint Nazaire

RANNOU Dylan

02 28 55 02 93

Biens similaires

Appartement 4 pièces à la vente
44600 Saint-Nazaire
LA HAVANE

409 000 € Honoraires d'agence inclus

SAINT-NAZAIRE - LA HAVANE

Réf : 127632
Honoraires charge acquéreur

Appartement 4 pièces à la vente
44600 Saint-Nazaire
Sud-Ouest

355 300 € Honoraires d'agence inclus

QUARTIER VILLES MARTIN

Réf : 125629
Honoraires charge acquéreur