Accueil Nos annonces de vente >

Appartement à vendre - Nantes 2 pièces de 44 m²


Nous contacter
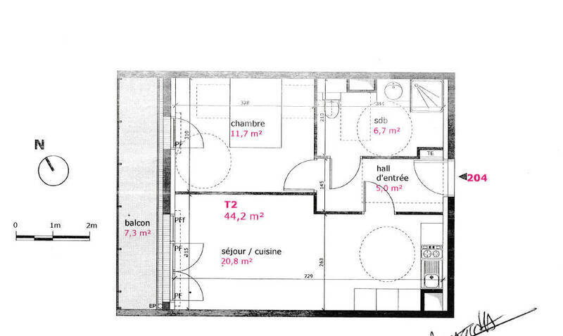
Dans une résidence de 2014, au calme, venez découvrir ce T2 lumineux situé au 2ème étage avec ascenseur. Vous bénéficierez d'une entrée, d'un séjour avec cuisine ouverte de 20m² donnant un balcon de plus de 7m² exposé ouest avec une vue dégagée, une chambre de 11m², une salle de d'eau avec WC .
Un garage et une cave complètent la vente.
Le chauffage, l'eau chaude et froide sont compris dans les charges de copropriété.

Caractéristiques

Nombre de pièces : 2

Surface habitable : 44 m²

Nombre de chambres : 1

Type chauffage : CollectifComptageIndividuel

Nature chauffage : Gaz

Exposition : Ouest

Année de construction : 2014

Ascenseur : Oui

Étage : 2

Nombre total d’étages : 4

Bien en copropriété

Nombre de lots : 128

Charges prévisionnelles : 2 507 € / an

Ascenseur

Prix de vente honoraires exclus : 155 000 €
Honoraires charge acquéreur TTC : 9 998 € (6.45% du prix net vendeur selon barème agence)
Les informations sur les risques auxquels ce bien est exposé sont disponibles sur le site Géorisques : www.georisques.gouv.fr

Diagnostic de performance énergétique

C
v Date de réalisation : 21/07/2025
Classe énergie
C
139 kWh/m².an
Classe climat
A
4 kg CO2/m².an

Estimation des coûts annuels d’énergie du logement
Entre 570 € et 810 € par an
Prix moyens des énergies indexés sur l'année 0 (abonnements compris)

Environnement et localisation

Nous appeler

Ce bien vous intéresse ?

Laissez nous un message

Si vous cochez non, vous indiquez que vous ne souhaitez pas recevoir de lettre d’information sur l'actualité de l’immobilier, les offres et produits de Thierry Immobilier.

En cliquant sur Envoyer vous acceptez de recevoir des informations concernant le bien présenté ci-dessus et des offres similaires susceptibles de vous intéresser.

Envoyer
*Les champs marqués d'un astérisque (*) sont obligatoires. Recueil de vos informations personnelles afin de pouvoir gérer la relation client et apporter conseils et informations complémentaires au niveau de la marque Thierry Immobilier et le cas échéant au niveau des partenaires et prestataires. Les données transmises via ce formulaire sont destinées uniquement au personnel de Thierry Immobilier et sont conservées pour une durée n’excédant pas celle nécessaire à la réalisation des finalités précitées.
Conformément au Règlement européen n°2016/679/UE du 27 avril 2016 sur la protection des données personnelles et à la loi « informatique et libertés » du 6 janvier 1978 modifiée, vous disposez d'un droit d'interrogation d'accès, de rectification, d’effacement, de portabilité et de limitation du traitement des données vous concernant ainsi que du droit de communiquer des directives sur le sort de vos données après votre mort. Vous avez également la possibilité de vous opposer au traitement des données vous concernant pour motifs légitimes. Vous pouvez exercer ce droit par courrier électronique adressé à : rgpdnantes@thierry-immobilier.fr - rgpdangers@thierry-immobilier.fr, ou par courrier à Thierry Immobilier - 10 rue Sarrazin - 44000 - Nantes, accompagné d'une copie d'un titre d'identité. Pour plus d'informations consulter nos Mentions légales.

Agence de Vente Nantes Viarme - Talensac
Nantes

Pour plus d'informations
 Allan GONORD - Agence de Vente Nantes Viarme - Talensac

GONORD Allan

02 40 47 03 03

Envoyer un mail

Biens similaires

Appartement 3 pièces à la vente
44300 Nantes
Géraudière - Boissière

169 900 € Honoraires d'agence inclus

T3 SPACIEUX AVEC BALCON - BOUT DES PAVÉS

Réf : 127451
Honoraires charge acquéreur

Appartement 2 pièces à la vente
44300 Nantes
Éraudière-Renaudière

158 000 € Honoraires d'agence inclus

ERAUDIERE-RENAUDIERE

Réf : 127369
Honoraires charge acquéreur

Appartement 2 pièces à la vente
44300 Nantes
Géraudière - Boissière

144 450 € Honoraires d'agence inclus

T2 LUMINEUX AVEC TERRASSE - NANTES NORD

Réf : 123062
Honoraires charge acquéreur