Accueil Nos annonces de vente >

Appartement à vendre - Saint-Herblain 2 pièces de 48.78 m²


Nous contacter
Saint-Herblain Nord-Sillon-Thébaudières
VAL DE CHEZINE NANTES SAINT HERBLAIN

Dans résidence très récente, spacieux appartement d'environ 48 m² lumineux, au calme, entre verdure et ville.

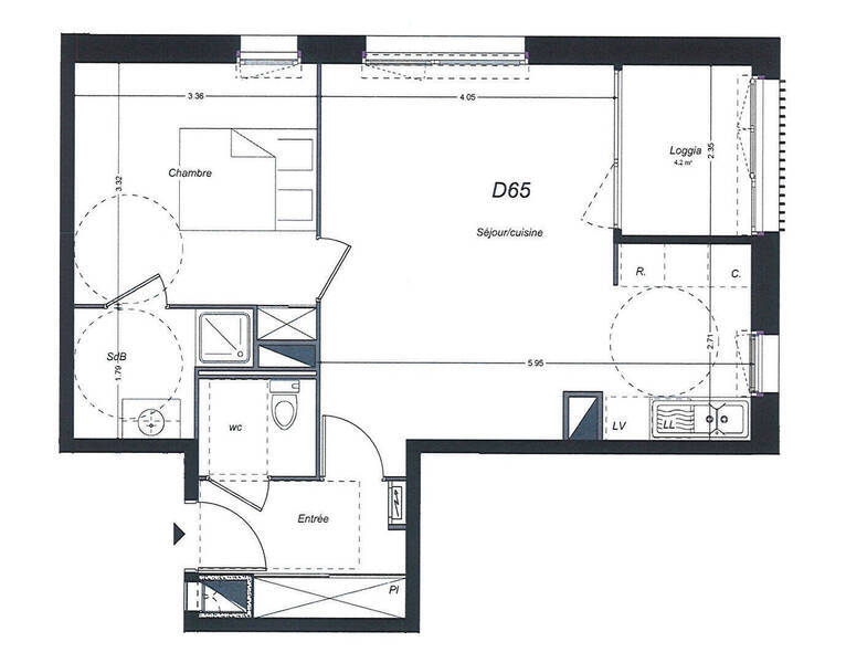
Il se compose d'une entrée avec placards, une pièce principale à la double exposition avec cuisine ouverte aménagée l'ensemble donnant sur une loggia chauffée, une chambre, une salle d'eau, toilettes séparés.

Il comprend également un parking et un local vélo. Proche tram ligne 3 (Marcel Paul),
tous commerces de la route de Vannes et Val de Chézine.
Belle opportunité!
La performance énergétique du logement est en C!

Caractéristiques

Nombre de pièces : 2

Surface habitable : 48.78 m²

Nombre de chambres : 1

Type chauffage : Individuel

Nature chauffage : Electrique

Exposition : Sud-Est

Année de construction : 2015

Ascenseur : Oui

Nombre de balcon : 1

Étage : 6

Nombre total d’étages : 8

Bien en copropriété

Nombre de lots : 179

Charges prévisionnelles : 1 766 € / an

Ascenseur

Prix de vente honoraires exclus : 145 000 €
Honoraires charge acquéreur TTC : 10 005 € (6.9% du prix net vendeur selon barème agence)
Les informations sur les risques auxquels ce bien est exposé sont disponibles sur le site Géorisques : www.georisques.gouv.fr

Diagnostic de performance énergétique

C
v Date de réalisation : 12/08/2025
Classe énergie
C
120 kWh/m².an
Classe climat
A
3 kg CO2/m².an

Estimation des coûts annuels d’énergie du logement
Entre 530 € et 760 € par an
Prix moyens des énergies indexés sur l'année 2023 (abonnements compris)

Environnement et localisation

Nous appeler

Ce bien vous intéresse ?

Laissez nous un message

Si vous cochez non, vous indiquez que vous ne souhaitez pas recevoir de lettre d’information sur l'actualité de l’immobilier, les offres et produits de Thierry Immobilier.

En cliquant sur Envoyer vous acceptez de recevoir des informations concernant le bien présenté ci-dessus et des offres similaires susceptibles de vous intéresser.

Envoyer
*Les champs marqués d'un astérisque (*) sont obligatoires. Recueil de vos informations personnelles afin de pouvoir gérer la relation client et apporter conseils et informations complémentaires au niveau de la marque Thierry Immobilier et le cas échéant au niveau des partenaires et prestataires. Les données transmises via ce formulaire sont destinées uniquement au personnel de Thierry Immobilier et sont conservées pour une durée n’excédant pas celle nécessaire à la réalisation des finalités précitées.
Conformément au Règlement européen n°2016/679/UE du 27 avril 2016 sur la protection des données personnelles et à la loi « informatique et libertés » du 6 janvier 1978 modifiée, vous disposez d'un droit d'interrogation d'accès, de rectification, d’effacement, de portabilité et de limitation du traitement des données vous concernant ainsi que du droit de communiquer des directives sur le sort de vos données après votre mort. Vous avez également la possibilité de vous opposer au traitement des données vous concernant pour motifs légitimes. Vous pouvez exercer ce droit par courrier électronique adressé à : rgpdnantes@thierry-immobilier.fr - rgpdangers@thierry-immobilier.fr, ou par courrier à Thierry Immobilier - 10 rue Sarrazin - 44000 - Nantes, accompagné d'une copie d'un titre d'identité. Pour plus d'informations consulter nos Mentions légales.

Agence de Vente Nantes Viarme - Talensac
Nantes

Pour plus d'informations
 Clotilde MORNET - Agence de Vente Nantes Viarme - Talensac

MORNET Clotilde

02 40 47 03 03

Envoyer un mail

Biens similaires

Appartement 3 pièces à la vente
44800 Saint-Herblain
Saint-Herblain Atlantis-Gournerie-Bergerie-Les Villages

149 800 € Honoraires d'agence inclus

RUE DE MAYENNE

Réf : 125116
Honoraires charge acquéreur

Appartement 2 pièces à la vente
44800 Saint-Herblain
Saint-Herblain

159 900 € Honoraires d'agence inclus

VAL DE CHÉZINE/THÉBAUDIÈRES

Réf : 120007
Honoraires charge acquéreur

Appartement 2 pièces à la vente
44800 Saint-Herblain
Saint-Herblain Preux - Crémetterie

129 600 € Honoraires d'agence inclus

T2 LUMINEUX ST HERBLAIN CRÉMETTERIE

Réf : 129066
Honoraires charge acquéreur