Accueil Nos annonces de vente >

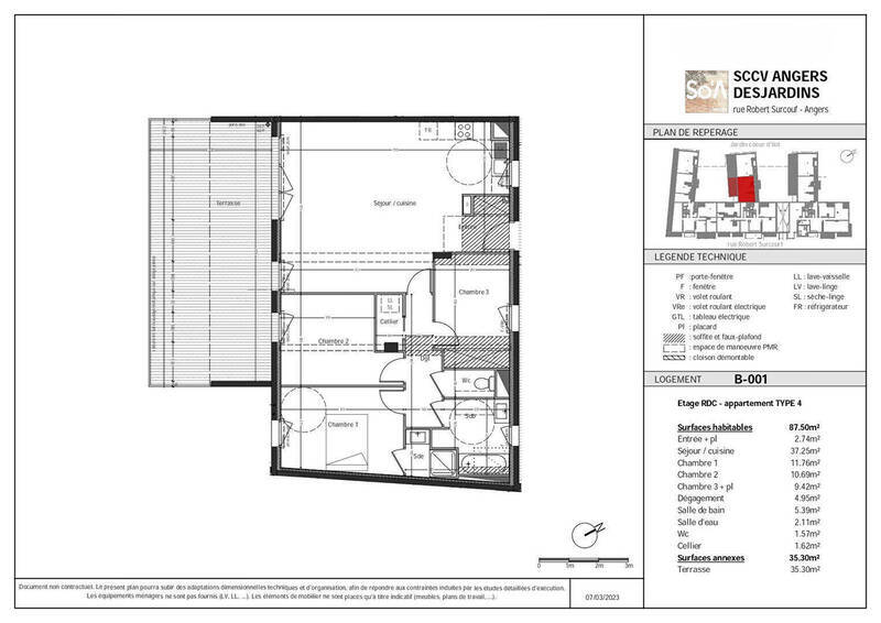
Appartement à vendre - Angers 4 pièces de 87.5 m²


Nous contacter
Saisissez l'opportunité de devenir le premier propriétaire de ce beau type 4 au rez-de-jardin exposé Sud ! Dans résidence neuve de standing !

Beau séjour lumineux avec terrasse de 40m2, trois chambres dont 1 suite parentale avec douche à l'italienne, une salle de bain moderne. et WC séparé.
Deux places de stationnement, une cave, un accès au local vélo.

Frais de notaire réduits !

Contactez nous pour faire une visite !

Caractéristiques

Nombre de pièces : 4

Surface habitable : 87.5 m²

Nombre de chambres : 3

Salle de bains : 1

Exposition : Sud

Année de construction : 2025

Ascenseur : Oui

Terrasse : 1

Nombre total d’étages : 3

Bien en copropriété

Nombre de lots : 83

Ascenseur

Prix de vente honoraires exclus : 389 500 €
Honoraires charge acquéreur TTC : 0 € (0% du prix net vendeur selon barème agence)
Les informations sur les risques auxquels ce bien est exposé sont disponibles sur le site Géorisques : www.georisques.gouv.fr

Diagnostic de performance énergétique

C
v Date de réalisation : 28/10/2024
Classe énergie
C
58 kWh/m².an
Classe climat
C
11 kg CO2/m².an

Estimation des coûts annuels d’énergie du logement
Entre 637 € et 862 € par an
Prix moyens des énergies indexés sur l'année 0 (abonnements compris)

Environnement et localisation

Nous appeler

Ce bien vous intéresse ?

Laissez nous un message

Si vous cochez non, vous indiquez que vous ne souhaitez pas recevoir de lettre d’information sur l'actualité de l’immobilier, les offres et produits de Thierry Immobilier.

En cliquant sur Envoyer vous acceptez de recevoir des informations concernant le bien présenté ci-dessus et des offres similaires susceptibles de vous intéresser.

Envoyer
*Les champs marqués d'un astérisque (*) sont obligatoires. Recueil de vos informations personnelles afin de pouvoir gérer la relation client et apporter conseils et informations complémentaires au niveau de la marque Thierry Immobilier et le cas échéant au niveau des partenaires et prestataires. Les données transmises via ce formulaire sont destinées uniquement au personnel de Thierry Immobilier et sont conservées pour une durée n’excédant pas celle nécessaire à la réalisation des finalités précitées.
Conformément au Règlement européen n°2016/679/UE du 27 avril 2016 sur la protection des données personnelles et à la loi « informatique et libertés » du 6 janvier 1978 modifiée, vous disposez d'un droit d'interrogation d'accès, de rectification, d’effacement, de portabilité et de limitation du traitement des données vous concernant ainsi que du droit de communiquer des directives sur le sort de vos données après votre mort. Vous avez également la possibilité de vous opposer au traitement des données vous concernant pour motifs légitimes. Vous pouvez exercer ce droit par courrier électronique adressé à : rgpdnantes@thierry-immobilier.fr - rgpdangers@thierry-immobilier.fr, ou par courrier à Thierry Immobilier - 10 rue Sarrazin - 44000 - Nantes, accompagné d'une copie d'un titre d'identité. Pour plus d'informations consulter nos Mentions légales.

Agence d'Angers
Angers

Agence immobilière à Angers

88 rue Bressigny
Angers - 49000

Plus d'infos

Biens similaires

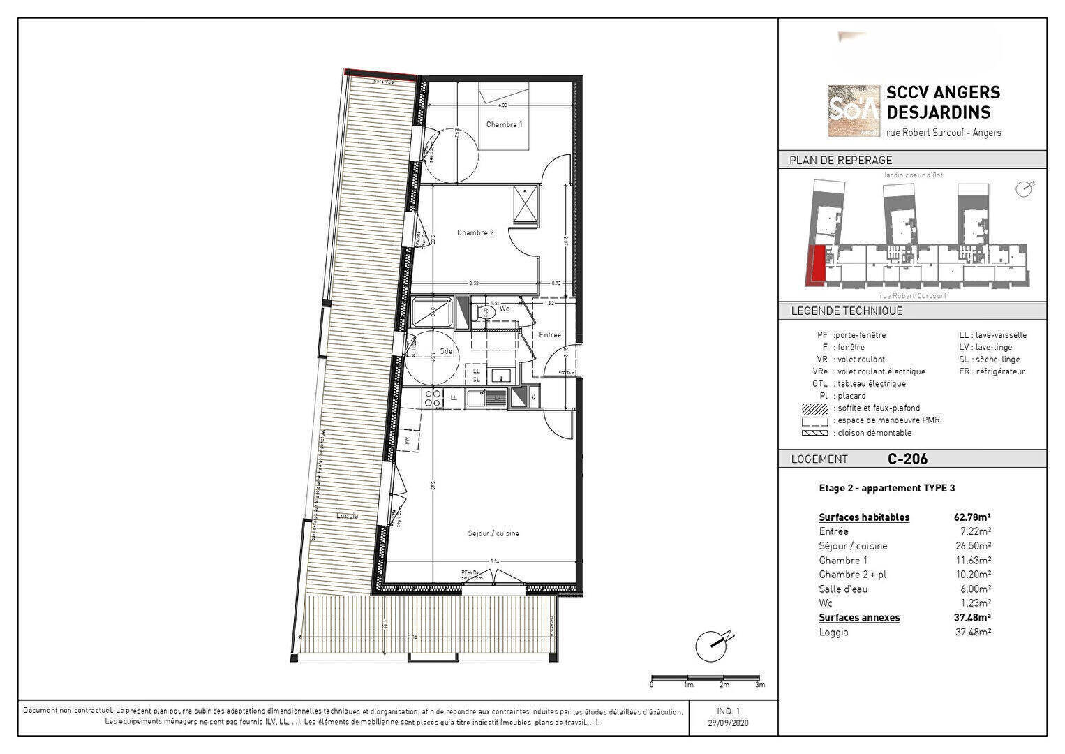
Appartement 3 pièces à la vente
49000 Angers

339 500 € Honoraires d'agence inclus

Appartement T3 - 62.78m2 - ANGERS

Réf : 129953
Honoraires charge acquéreur

Appartement 3 pièces à la vente
49000 Angers

319 000 € Honoraires d'agence inclus

Appartement T3 - 57.97 m2 - ANGERS GARE

Réf : 129931
Honoraires charge acquéreur