Accueil Nos annonces de vente >

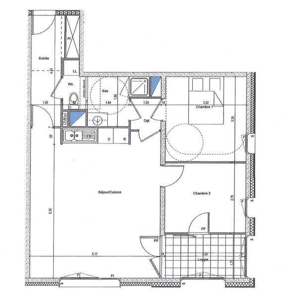
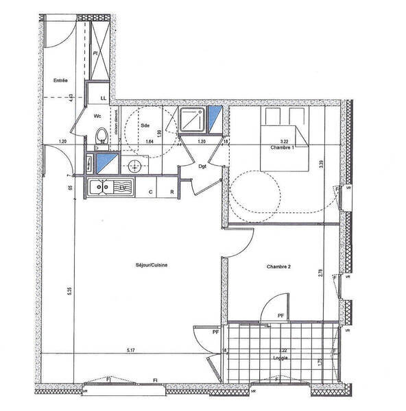
Appartement à vendre - Rezé 3 pièces de 64 m²


Nous contacter
Pont Rousseau
Rezé - Pont Rousseau - Découvrez ce superbe T3 de 64 m² au 5ème étage avec ascenseur dans une résidence récente.
Ce bel appartement en très bon état général offre un cadre de vie idéal et fonctionnel.
Vous profiterez d'une pièce de vie lumineuse avec sa cuisine aménagée et équipée et ouvrant sur une loggia, de deux chambres confortables et d'un garage box sécurisé en sous-sol.
A proximité immédiate du tramway et des commerces, tout est accessible à pied dans un environnement dynamique.
La performance énergétique de ce logement est classée A !

Caractéristiques

Nombre de pièces : 3

Surface habitable : 64 m²

Nombre de chambres : 2

Type chauffage : Individuel

Nature chauffage : Gaz

Exposition : Sud

Année de construction : 2016

Ascenseur : Oui

Étage : 5

Nombre total d’étages : 8

Bien en copropriété

Nombre de lots : 198

Charges prévisionnelles : 1 560 € / an

Ascenseur

Prix de vente honoraires exclus : 189 000 €
Honoraires charge acquéreur TTC : 10 943 € (5.79% du prix net vendeur selon barème agence)
Les informations sur les risques auxquels ce bien est exposé sont disponibles sur le site Géorisques : www.georisques.gouv.fr

Diagnostic de performance énergétique

A
v Date de réalisation : 03/02/2026
Classe énergie
A
49 kWh/m².an
Classe climat
A
1 kg CO2/m².an

Estimation des coûts annuels d’énergie du logement
Entre 436 € et 590 € par an
Prix moyens des énergies indexés sur l'année 0 (abonnements compris)

Environnement et localisation

Nous appeler

Ce bien vous intéresse ?

Laissez nous un message

Si vous cochez non, vous indiquez que vous ne souhaitez pas recevoir de lettre d’information sur l'actualité de l’immobilier, les offres et produits de Thierry Immobilier.

En cliquant sur Envoyer vous acceptez de recevoir des informations concernant le bien présenté ci-dessus et des offres similaires susceptibles de vous intéresser.

Envoyer
*Les champs marqués d'un astérisque (*) sont obligatoires. Recueil de vos informations personnelles afin de pouvoir gérer la relation client et apporter conseils et informations complémentaires au niveau de la marque Thierry Immobilier et le cas échéant au niveau des partenaires et prestataires. Les données transmises via ce formulaire sont destinées uniquement au personnel de Thierry Immobilier et sont conservées pour une durée n’excédant pas celle nécessaire à la réalisation des finalités précitées.
Conformément au Règlement européen n°2016/679/UE du 27 avril 2016 sur la protection des données personnelles et à la loi « informatique et libertés » du 6 janvier 1978 modifiée, vous disposez d'un droit d'interrogation d'accès, de rectification, d’effacement, de portabilité et de limitation du traitement des données vous concernant ainsi que du droit de communiquer des directives sur le sort de vos données après votre mort. Vous avez également la possibilité de vous opposer au traitement des données vous concernant pour motifs légitimes. Vous pouvez exercer ce droit par courrier électronique adressé à : rgpdnantes@thierry-immobilier.fr - rgpdangers@thierry-immobilier.fr, ou par courrier à Thierry Immobilier - 10 rue Sarrazin - 44000 - Nantes, accompagné d'une copie d'un titre d'identité. Pour plus d'informations consulter nos Mentions légales.

Agence de Saint-Sébastien-sur-Loire - Sud Loire
Saint-Sébastien-sur-Loire

Pour plus d'informations
Mr Thomas CESBRON - Agence de Saint-Sébastien-sur-Loire - Sud Loire

CESBRON Thomas

02 40 47 99 99

Envoyer un mail

Biens similaires

Appartement 3 pièces à la vente
44400 Rezé
Rezé

222 600 € Honoraires d'agence inclus

Appartement Reze 3 pièces 64 m² jardin et terrasse

Réf : 128120
Honoraires charge acquéreur

Appartement 3 pièces à la vente
44400 Rezé
Rezé

171 200 € Honoraires d'agence inclus

Appartement 3 pièces 69m² Rezé Place du 8 Mai

Réf : 129188
Honoraires charge acquéreur

Appartement 3 pièces à la vente
44400 Rezé
Rezé

181 900 € Honoraires d'agence inclus

Lumineux T3/T4 de 75 m² Rezé La Houssais

Réf : 129293
Honoraires charge acquéreur