Accueil Nos annonces de vente >

Appartement à vendre - Nantes 2 pièces de 45.83 m²


Nous contacter
hNous contacter Favoris Partager bAlerte mail Ñ Imprimer
Bottière - Chénaie
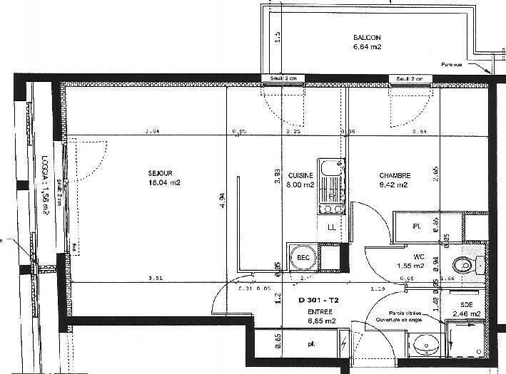
CHENAIE Dans environnement calme proche des commerces et des transports, agréable T2 de 46m² au 3eme étage avec ascenseur d'une résidence de 2009. Il comprend une entrée avec placard, une pièce de vie avec cuisine ouverte donnant sur balcon, une chambre avec placard, une salle de bain, wc séparés. Un garage complète ce bien.

Caractéristiques

Nombre de pièces : 2

Surface habitable : 45.83 m²

Nombre de chambres : 1

Type chauffage : Individuel

Nature chauffage : Electrique

Exposition : Sud-Ouest

Année de construction : 2009

Ascenseur : Oui

Nombre de balcon : 1

Terrasse : 1

Étage : 3

Nombre total d’étages : 5

Bien en copropriété

Nombre de lots : 100

Charges prévisionnelles : 968 € / an

Ascenseur

Prix de vente honoraires exclus : 150 000 €
Honoraires charge acquéreur TTC : 10 500 € (7% du prix net vendeur selon barème agence)
Les informations sur les risques auxquels ce bien est exposé sont disponibles sur le site Géorisques : www.georisques.gouv.fr

Diagnostic de performance énergétique

C
v Date de réalisation : 23/12/2025
Classe énergie
C
4 kWh/m².an
Classe climat
A
4 kg CO2/m².an

Estimation des coûts annuels d’énergie du logement
Entre 620 € et 900 € par an
Prix moyens des énergies indexés sur l'année 0 (abonnements compris)

Environnement et localisation

Nous appeler

Ce bien vous intéresse ?

Laissez nous un message

Si vous cochez non, vous indiquez que vous ne souhaitez pas recevoir de lettre d’information sur l'actualité de l’immobilier, les offres et produits de Thierry Immobilier.

En cliquant sur Envoyer vous acceptez de recevoir des informations concernant le bien présenté ci-dessus et des offres similaires susceptibles de vous intéresser.

Envoyer
*Les champs marqués d'un astérisque (*) sont obligatoires. Recueil de vos informations personnelles afin de pouvoir gérer la relation client et apporter conseils et informations complémentaires au niveau de la marque Thierry Immobilier et le cas échéant au niveau des partenaires et prestataires. Les données transmises via ce formulaire sont destinées uniquement au personnel de Thierry Immobilier et sont conservées pour une durée n’excédant pas celle nécessaire à la réalisation des finalités précitées.
Conformément au Règlement européen n°2016/679/UE du 27 avril 2016 sur la protection des données personnelles et à la loi « informatique et libertés » du 6 janvier 1978 modifiée, vous disposez d'un droit d'interrogation d'accès, de rectification, d’effacement, de portabilité et de limitation du traitement des données vous concernant ainsi que du droit de communiquer des directives sur le sort de vos données après votre mort. Vous avez également la possibilité de vous opposer au traitement des données vous concernant pour motifs légitimes. Vous pouvez exercer ce droit par courrier électronique adressé à : rgpdnantes@thierry-immobilier.fr - rgpdangers@thierry-immobilier.fr, ou par courrier à Thierry Immobilier - 10 rue Sarrazin - 44000 - Nantes, accompagné d'une copie d'un titre d'identité. Pour plus d'informations consulter nos Mentions légales.

Agence de Vente Nantes Viarme - Talensac
Nantes

Pour plus d'informations
 Julie LE DUC - Agence de Vente Nantes Viarme - Talensac

LE DUC Julie

02 40 47 03 03

Envoyer un mail

Biens similaires

Appartement 2 pièces à la vente
44000 Nantes
Centre ville

134 700 € Honoraires d'agence inclus

T2 VIARME

Réf : 129272
Honoraires charge acquéreur

Appartement 2 pièces à la vente
44000 Nantes
Rond-Point de Paris - Blanche de Castille

176 500 € Honoraires d'agence inclus

ROND POINT DE PARIS - CHALATRES

Réf : 128761
Honoraires charge acquéreur

Appartement 2 pièces à la vente
44000 Nantes
Gare Sud - Malakoff

181 900 € Honoraires d'agence inclus

GARE SUD / MALAKOFF

Réf : 129281
Honoraires charge acquéreur