Nouveauté
Nouveauté
STUDIO - LE NANTEUS
Réf. : 10342
463 € / mois CC

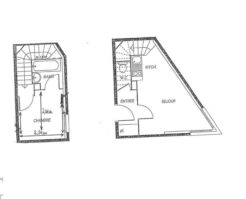
2 PIECES - SAINT SEBASTIEN SUR LOIRE - #9881
Réf. : 9881
605 € / mois CC
Nouveauté
T2 - NANTES
Réf. : 10435
627 € / mois CC