Accueil Nos annonces de locations >

Appartement à louer - Saint-Nazaire 2 pièces de 36 m²

Nous contacter
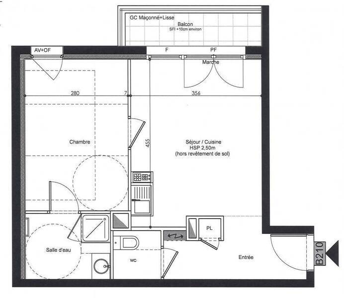
SAINT NAZAIRE - À quelques minutes à pied du centre-ville de Saint-Nazaire et à deux pas de la gare SNCF, à proximité immédiate des transports (lignes de bus Hélyce en direction de l'Université). Dans une résidence récente BBC, un appartement T2 comprenant : une entrée avec un placard, un séjour avec un espace cuisine aménagé et équipé de plaques, d'une hotte et d'un frigo, le tout donnant sur un balcon, une chambre, une salle d'eau, wc séparés. Parking couvert. Conditions de Ressources LOI PINEL Chauffage et eau chaudes inclus Les informations sur les risques auxquels ce bien est exposé sont disponibles sur le site Géorisques : www. georisques. gouv. fr

Caractéristiques

Nombre de pièces : 2

Surface habitable : 36 m²

Nombre de chambres : 1

Salle de bains : 1

Nature chauffage : Gaz

Exposition : Sud

Année de construction : 2018

Stationnement privatif : 1

Ascenseur : Oui

Nombre de balcon : 1

Étage : 2

Disponible : 15/12/2025

Loyer : 544 € / mois CC
Dont :
- 80 € de provision pour charges locatives (régularisation annuelle)

Honoraires à charge locataire TTC : 479,05 €
dont 110,55 € pour l’état des lieux
Dépôt de garantie : 464 €

Diagnostic de performance énergétique

C
v Date de réalisation : 12/03/2025
Classe énergie
C
87 kWh/m².an
Classe climat
C
15 kg CO2/m².an

Estimation des coûts annuels d’énergie du logement
Entre 270 € et 400 € par an
Prix moyens des énergies indexés sur l'année 0 (abonnements compris)

Environnement et localisation

Nous appeler

Ce bien vous intéresse ?

Laissez nous un message

Si vous cochez non, vous indiquez que vous ne souhaitez pas recevoir de lettre d’information sur l'actualité de l’immobilier, les offres et produits de Thierry Immobilier.

En cliquant sur Envoyer vous acceptez de recevoir des informations concernant le bien présenté ci-dessus et des offres similaires susceptibles de vous intéresser.

Envoyer
*Les champs marqués d'un astérisque (*) sont obligatoires. Recueil de vos informations personnelles afin de pouvoir gérer la relation client et apporter conseils et informations complémentaires au niveau de la marque Thierry Immobilier et le cas échéant au niveau des partenaires et prestataires. Les données transmises via ce formulaire sont destinées uniquement au personnel de Thierry Immobilier et sont conservées pour une durée n’excédant pas celle nécessaire à la réalisation des finalités précitées.
Conformément au Règlement européen n°2016/679/UE du 27 avril 2016 sur la protection des données personnelles et à la loi « informatique et libertés » du 6 janvier 1978 modifiée, vous disposez d'un droit d'interrogation d'accès, de rectification, d’effacement, de portabilité et de limitation du traitement des données vous concernant ainsi que du droit de communiquer des directives sur le sort de vos données après votre mort. Vous avez également la possibilité de vous opposer au traitement des données vous concernant pour motifs légitimes. Vous pouvez exercer ce droit par courrier électronique adressé à : rgpdnantes@thierry-immobilier.fr - rgpdangers@thierry-immobilier.fr, ou par courrier à Thierry Immobilier - 10 rue Sarrazin - 44000 - Nantes, accompagné d'une copie d'un titre d'identité. Pour plus d'informations consulter nos Mentions légales.

Agence de Saint Nazaire
Saint-Nazaire

Agence immobilière à Saint-Nazaire

41 rue des Halles
Saint-Nazaire - 44600

Plus d'infos

Biens similaires

Appartement 2 pièces à la location
44600 Saint-Nazaire

630 € / mois CC

2 PIECES MEUBLE -- SAINT NAZAIRE

Réf : 3000

Appartement 2 pièces à la location
44600 Saint-Nazaire

637 € / mois CC

T2 Saint Nazaire Centre - non meublé

Réf : 2975

Appartement 2 pièces à la location
44600 Saint-Nazaire

501 € / mois CC

T2 / St-Nazaire

Réf : 3041