Accueil Nos annonces de vente >

Appartement à vendre - Nantes 3 pièces de 60.83 m²


Nous contacter
Pont du Cens - Petit port
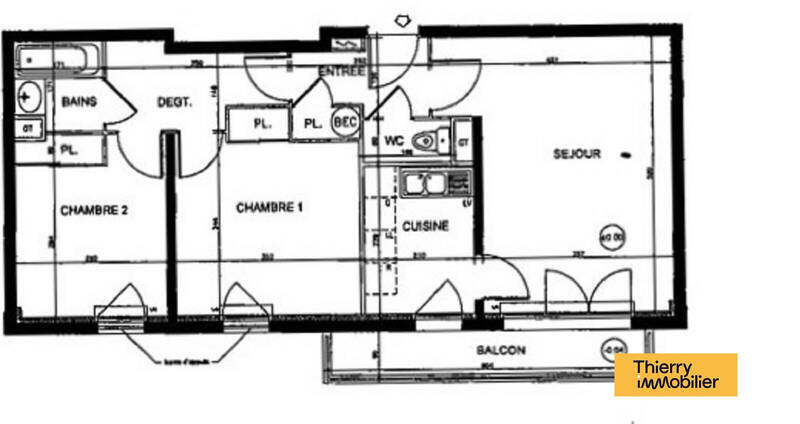
LONGCHAMP/BEAUSÉJOUR Idéalement situé, ce T3 lumineux au 1er étage d'une résidence récente et calme offre un cadre de vie pratique et agréable. L'immeuble de 2003, sécurisé, dispose d'un ascenseur et d'accès PMR facilitant le quotidien de tous. L'appartement vous séduira par sa fonctionnalité : séjour lumineux ouvrant sur un balcon, cuisine indépendante, deux chambres confortables avec placards intégrés et salle de bains. L'emplacement est un véritable atout avec les transports, commerces et écoles accessibles à pied, sans oublier la fibre disponible pour rester connecté. Un généreux garage double en sous-sol complète ce bien au DPE C, parfait pour un quotidien sans contraintes dans un environnement de standing.

Caractéristiques

Nombre de pièces : 3

Surface habitable : 60.83 m²

Nombre de chambres : 2

Salle de bains : 1

Type chauffage : Individuel

Nature chauffage : Electrique

Exposition : Est

Année de construction : 2003

Ascenseur : Oui

Nombre de balcon : 1

Étage : 1

Nombre total d’étages : 3

Bien en copropriété

Nombre de lots : 185

Charges prévisionnelles : 1 796 € / an

Ascenseur

Prix de vente honoraires exclus : 210 000 €
Honoraires charge acquéreur TTC : 12 600 € (6% du prix net vendeur selon barème agence)
Les informations sur les risques auxquels ce bien est exposé sont disponibles sur le site Géorisques : www.georisques.gouv.fr

Diagnostic de performance énergétique

C
v Date de réalisation : 12/11/2025
Classe énergie
C
144 kWh/m².an
Classe climat
A
5 kg CO2/m².an

Estimation des coûts annuels d’énergie du logement
Entre 860 € et 1 220 € par an
Prix moyens des énergies indexés sur l'année 0 (abonnements compris)

Environnement et localisation

Nous appeler

Ce bien vous intéresse ?

Laissez nous un message

Si vous cochez non, vous indiquez que vous ne souhaitez pas recevoir de lettre d’information sur l'actualité de l’immobilier, les offres et produits de Thierry Immobilier.

En cliquant sur Envoyer vous acceptez de recevoir des informations concernant le bien présenté ci-dessus et des offres similaires susceptibles de vous intéresser.

Envoyer
*Les champs marqués d'un astérisque (*) sont obligatoires. Recueil de vos informations personnelles afin de pouvoir gérer la relation client et apporter conseils et informations complémentaires au niveau de la marque Thierry Immobilier et le cas échéant au niveau des partenaires et prestataires. Les données transmises via ce formulaire sont destinées uniquement au personnel de Thierry Immobilier et sont conservées pour une durée n’excédant pas celle nécessaire à la réalisation des finalités précitées.
Conformément au Règlement européen n°2016/679/UE du 27 avril 2016 sur la protection des données personnelles et à la loi « informatique et libertés » du 6 janvier 1978 modifiée, vous disposez d'un droit d'interrogation d'accès, de rectification, d’effacement, de portabilité et de limitation du traitement des données vous concernant ainsi que du droit de communiquer des directives sur le sort de vos données après votre mort. Vous avez également la possibilité de vous opposer au traitement des données vous concernant pour motifs légitimes. Vous pouvez exercer ce droit par courrier électronique adressé à : rgpdnantes@thierry-immobilier.fr - rgpdangers@thierry-immobilier.fr, ou par courrier à Thierry Immobilier - 10 rue Sarrazin - 44000 - Nantes, accompagné d'une copie d'un titre d'identité. Pour plus d'informations consulter nos Mentions légales.

Agence de Vente Nantes Viarme - Talensac
Nantes

Pour plus d'informations
 Gwenola SUZEAU - Agence de Vente Nantes Viarme - Talensac

SUZEAU Gwenola

02 40 47 03 03

Envoyer un mail

Biens similaires

Appartement 3 pièces à la vente
44300 Nantes
Éraudière-Renaudière

217 000 € Honoraires d'agence inclus

ERAUDIERE

Réf : 128123
Honoraires charge acquéreur

Appartement 3 pièces à la vente
44300 Nantes
Bottière - Chénaie

212 000 € Honoraires d'agence inclus

RTE DE STE LUCE T3 REZ DE JARDIN

Réf : 124361
Honoraires charge acquéreur

Appartement 3 pièces à la vente
44300 Nantes
Rond-point de Rennes

243 000 € Honoraires d'agence inclus

LONGCHAMP

Réf : 129384
Honoraires charge acquéreur