Accueil Nos annonces de vente >

Appartement à vendre - Nantes 2 pièces de 33.43 m²


Nous contacter
Centre ville
Entre Saint Mihiel et Saint Clément - A deux pas de l'hyper centre.
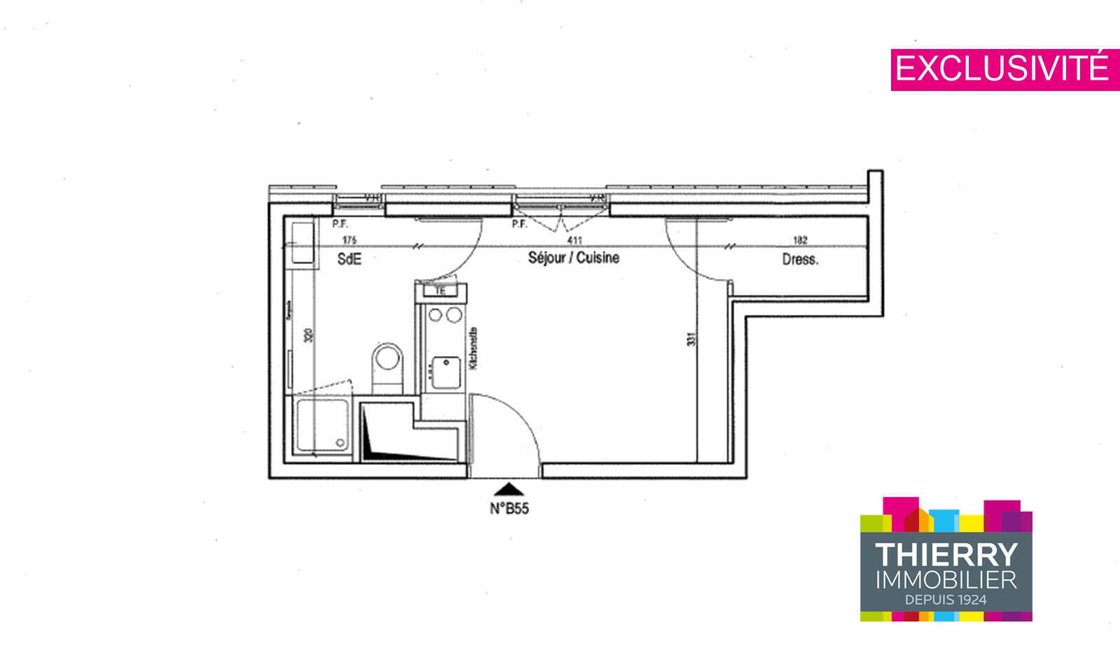
Venez découvrir cet appartement 2 pièces rénové de 33 m² en rez-de-chaussée surélevé sur l'arrière.
Il se compose d'une entrée, d'un séjour avec cuisine aménagée et équipée semi-ouverte de presque 20m², d'un coin nuit, d'une salle d'eau et de WC indépendants.
L'appartement dispose également d'une cave et d'un grenier.
A deux pas des commerces.

Caractéristiques

Nombre de pièces : 2

Surface habitable : 33.43 m²

Nombre de chambres : 1

Type chauffage : Individuel

Nature chauffage : Electrique

Exposition : Est

Année de construction : 1955

Nombre total d’étages : 4

Bien en copropriété

Nombre de lots : 54

Charges prévisionnelles : 953 € / an

Prix de vente honoraires exclus : 125 000 €
Honoraires charge acquéreur TTC : 6 125 € (4.9% du prix net vendeur selon barème agence)
Les informations sur les risques auxquels ce bien est exposé sont disponibles sur le site Géorisques : www.georisques.gouv.fr

Diagnostic de performance énergétique

E
v Date de réalisation : 20/02/2024
Classe énergie
E
321 kWh/m².an
Classe climat
C
20 kg CO2/m².an

Estimation des coûts annuels d’énergie du logement
Entre 760 € et 1 050 € par an
Prix moyens des énergies indexés sur l'année 0 (abonnements compris)

Environnement et localisation

Nous appeler

Ce bien vous intéresse ?

Laissez nous un message

Si vous cochez non, vous indiquez que vous ne souhaitez pas recevoir de lettre d’information sur l'actualité de l’immobilier, les offres et produits de Thierry Immobilier.

En cliquant sur Envoyer vous acceptez de recevoir des informations concernant le bien présenté ci-dessus et des offres similaires susceptibles de vous intéresser.

Envoyer
*Les champs marqués d'un astérisque (*) sont obligatoires. Recueil de vos informations personnelles afin de pouvoir gérer la relation client et apporter conseils et informations complémentaires au niveau de la marque Thierry Immobilier et le cas échéant au niveau des partenaires et prestataires. Les données transmises via ce formulaire sont destinées uniquement au personnel de Thierry Immobilier et sont conservées pour une durée n’excédant pas celle nécessaire à la réalisation des finalités précitées.
Conformément au Règlement européen n°2016/679/UE du 27 avril 2016 sur la protection des données personnelles et à la loi « informatique et libertés » du 6 janvier 1978 modifiée, vous disposez d'un droit d'interrogation d'accès, de rectification, d’effacement, de portabilité et de limitation du traitement des données vous concernant ainsi que du droit de communiquer des directives sur le sort de vos données après votre mort. Vous avez également la possibilité de vous opposer au traitement des données vous concernant pour motifs légitimes. Vous pouvez exercer ce droit par courrier électronique adressé à : rgpdnantes@thierry-immobilier.fr - rgpdangers@thierry-immobilier.fr, ou par courrier à Thierry Immobilier - 10 rue Sarrazin - 44000 - Nantes, accompagné d'une copie d'un titre d'identité. Pour plus d'informations consulter nos Mentions légales.

Agence de Vente Nantes Viarme - Talensac
Nantes

Pour plus d'informations
 Allan GONORD - Agence de Vente Nantes Viarme - Talensac

GONORD Allan

02 40 47 03 03

Envoyer un mail

Biens similaires

Appartement 1 pièce à la vente
44000 Nantes
Centre ville

124 200 € Honoraires d'agence inclus

VIARME

Réf : 124578
Honoraires charge acquéreur

Appartement 1 pièce à la vente
44000 Nantes
Île de Nantes

123 000 € Honoraires d'agence inclus

ILE DE NANTES

Réf : 129314
Honoraires charge acquéreur

Appartement 1 pièce à la vente
44000 Nantes
Tortière

117 700 € Honoraires d'agence inclus

T1 TORTIERE LOUE

Réf : 129446
Honoraires charge acquéreur