Accueil Nos annonces de locations >

Appartement à louer - Nantes 2 pièces de 26 m²

Nous contacter
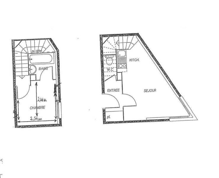
NANTES - QUARTIER TOUTES JOIES, emplacement idéal pour cet appartement type 2 en duplex entièrement repeint en 2025 comprenant : une entrée avec placard, un séjour, une cuisine ouverte aménagée et équipée (frigo et plaques), wc séparés. A l'étage: un espace nuit, une salle de bains. Parking extérieur. Logement soumis à la Garantie des Loyers Impayés (GLI). Les informations sur les risques auxquels ce bien est exposé sont disponibles sur le site Géorisques: www.georisques.gouv.fr.

Caractéristiques

Nombre de pièces : 2

Surface habitable : 26 m²

Nombre de chambres : 1

Salle de bains : 1

Nature chauffage : électricité

Exposition : Est

Année de construction : 1994

Stationnement privatif : 1

Ascenseur : Oui

Étage : 3

Disponible : 02/02/2026

Loyer : 516 € / mois CC
Dont :
- 40 € de provision pour charges locatives (régularisation annuelle)

Honoraires à charge locataire TTC : 344,63 €
dont 79,53 € pour l’état des lieux
Dépôt de garantie : 476 €

Diagnostic de performance énergétique

E
v Date de réalisation : 20/11/2024
Classe énergie
E
252 kWh/m².an
Classe climat
B
9 kg CO2/m².an

Estimation des coûts annuels d’énergie du logement
Entre 720 € et 1 010 € par an
Prix moyens des énergies indexés sur l'année 0 (abonnements compris)

Environnement et localisation

Nous appeler

Ce bien vous intéresse ?

Laissez nous un message

Si vous cochez non, vous indiquez que vous ne souhaitez pas recevoir de lettre d’information sur l'actualité de l’immobilier, les offres et produits de Thierry Immobilier.

En cliquant sur Envoyer vous acceptez de recevoir des informations concernant le bien présenté ci-dessus et des offres similaires susceptibles de vous intéresser.

Envoyer
*Les champs marqués d'un astérisque (*) sont obligatoires. Recueil de vos informations personnelles afin de pouvoir gérer la relation client et apporter conseils et informations complémentaires au niveau de la marque Thierry Immobilier et le cas échéant au niveau des partenaires et prestataires. Les données transmises via ce formulaire sont destinées uniquement au personnel de Thierry Immobilier et sont conservées pour une durée n’excédant pas celle nécessaire à la réalisation des finalités précitées.
Conformément au Règlement européen n°2016/679/UE du 27 avril 2016 sur la protection des données personnelles et à la loi « informatique et libertés » du 6 janvier 1978 modifiée, vous disposez d'un droit d'interrogation d'accès, de rectification, d’effacement, de portabilité et de limitation du traitement des données vous concernant ainsi que du droit de communiquer des directives sur le sort de vos données après votre mort. Vous avez également la possibilité de vous opposer au traitement des données vous concernant pour motifs légitimes. Vous pouvez exercer ce droit par courrier électronique adressé à : rgpdnantes@thierry-immobilier.fr - rgpdangers@thierry-immobilier.fr, ou par courrier à Thierry Immobilier - 10 rue Sarrazin - 44000 - Nantes, accompagné d'une copie d'un titre d'identité. Pour plus d'informations consulter nos Mentions légales.

Agence de Location Nantes
Nantes

Agence immobilière à Nantes

10 rue Sarrazin
Nantes - 44000

Plus d'infos

Biens similaires

Appartement 1 pièce à la location
44000 Nantes

505 € / mois CC

NANTES - T1

Réf : 10159

Appartement 1 pièce à la location
44000 Nantes
Gare Maritime

590 € / mois CC

NANTES - Studio

Réf : 10510

Appartement 1 pièce à la location
44000 Nantes
Centre ville

545 € / mois CC

NANTES - STUDIO MEUBLE

Réf : 10618