Accueil Nos annonces de locations >

Appartement à louer - Nantes 1 pièce de 24 m²

Nous contacter
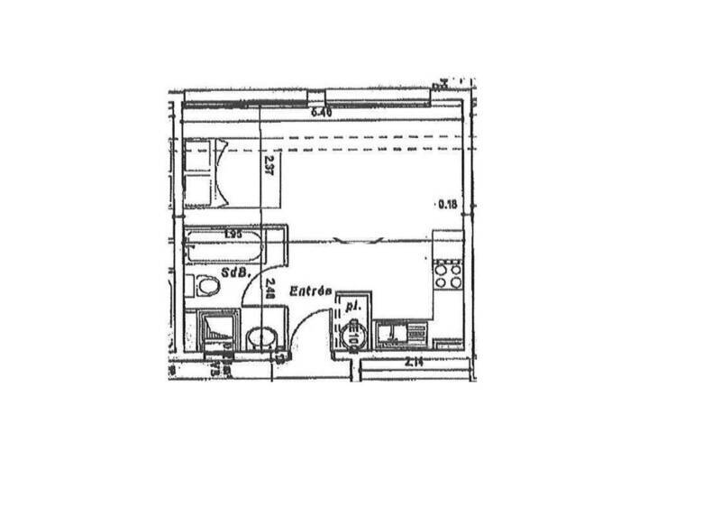
NANTES - SAINT FELIX Appartement T1 bis Meublé, idéalement situé rue Cochard Polenne, au cœur d'un quartier recherché pour sa proximité avec l'hyper centre et son calme résidentiel. Entièrement aménagé avec goût, il comprend une entrée menant à une pièce de vie lumineuse, une cuisine ouverte entièrement équipée : plaques de cuisson, réfrigérateur, micro-ondes, machine à café et lave-linge intégré (un vrai luxe en studio !) avec de nombreux rangements hauts et bas, placards dressing qui complètent l'espace. Il offre un espace nuit douillet : un vrai lit avec sommier et une literie de qualité. Des rideaux apportent intimité et douceur à l'espace nuit ; une salle de bain avec wc. Une place de stationnement sécurisée en sous-sol est incluse. Commerces de bouches (Intermaché, boulangerie,...), transports et bords de l'Erdre à proximité. Les informations sur les risques auxquels ce bien est exposé sont disponibles sur le site Géorisques : www.georisques.gouv.fr

Caractéristiques

Nombre de pièces : 1

Meublé : Oui

Surface habitable : 24 m²

Salle de bains : 1

Nature chauffage : électricité

Année de construction : 2008

Stationnement privatif : 1

Ascenseur : Oui

Étage : 2

Disponible : Immédiatement

Loyer : 650 € / mois CC
Dont :
- 50 € de provision pour charges locatives (régularisation annuelle)

Honoraires à charge locataire TTC : 322,10 €
dont 74,39 € pour l’état des lieux
Dépôt de garantie : 1 200 €

Diagnostic de performance énergétique

C
v Date de réalisation : 13/04/2026
Classe énergie
C
139 kWh/m².an
Classe climat
A
4 kg CO2/m².an

Estimation des coûts annuels d’énergie du logement
Entre 430 € et 620 € par an
Prix moyens des énergies indexés sur l'année 0 (abonnements compris)

Environnement et localisation

Nous appeler

Ce bien vous intéresse ?

Laissez nous un message

Si vous cochez non, vous indiquez que vous ne souhaitez pas recevoir de lettre d’information sur l'actualité de l’immobilier, les offres et produits de Thierry Immobilier.

En cliquant sur Envoyer vous acceptez de recevoir des informations concernant le bien présenté ci-dessus et des offres similaires susceptibles de vous intéresser.

Envoyer
*Les champs marqués d'un astérisque (*) sont obligatoires. Recueil de vos informations personnelles afin de pouvoir gérer la relation client et apporter conseils et informations complémentaires au niveau de la marque Thierry Immobilier et le cas échéant au niveau des partenaires et prestataires. Les données transmises via ce formulaire sont destinées uniquement au personnel de Thierry Immobilier et sont conservées pour une durée n’excédant pas celle nécessaire à la réalisation des finalités précitées.
Conformément au Règlement européen n°2016/679/UE du 27 avril 2016 sur la protection des données personnelles et à la loi « informatique et libertés » du 6 janvier 1978 modifiée, vous disposez d'un droit d'interrogation d'accès, de rectification, d’effacement, de portabilité et de limitation du traitement des données vous concernant ainsi que du droit de communiquer des directives sur le sort de vos données après votre mort. Vous avez également la possibilité de vous opposer au traitement des données vous concernant pour motifs légitimes. Vous pouvez exercer ce droit par courrier électronique adressé à : rgpdnantes@thierry-immobilier.fr - rgpdangers@thierry-immobilier.fr, ou par courrier à Thierry Immobilier - 10 rue Sarrazin - 44000 - Nantes, accompagné d'une copie d'un titre d'identité. Pour plus d'informations consulter nos Mentions légales.

Agence de Location Nantes
Nantes

Agence immobilière à Nantes

10 rue Sarrazin
Nantes - 44000

Plus d'infos

Biens similaires

Appartement 2 pièces à la location
44000 Nantes

749 € / mois CC

NANTES - T2 DUPLEX

Réf : 10555

Appartement 2 pièces à la location
44000 Nantes

605 € / mois CC

NANTES - T2

Réf : 9196

Appartement 1 pièce à la location
44000 Nantes

604 € / mois CC

T1 BIS MEUBLE - NANTES

Réf : 11124